Building rigorous products takes communication that is just as strong. This is where adaptive CAD plays a part. Making sure you have all the tools you need to convey design intent fluently is a driving force behind our roadmap. Every aspect of your design should speak for itself - so you can beat production cycle deadlines and funnel your focus into innovating. This requires as precise 2D Drawings as communicating with 3D modeling, with fluid switches in between. With this in mind, we tackled the common language of manufacturing: 2D Drawings.
Since introducing 2D Drawings to Shapr3D in 2021, we built up the core modeling experience in parallel. Our goal was to make sure you could showcase final models proudly, supported by clear documentation in Design for Manufacturing sessions.
The 2D Drawings overhaul
Since the Spring of 2023, our team has fielded and tackled your requests to expand 2D Drawing capabilities in Shapr3D. We divided up our Drawings roadmap into steps that progressively cover more and more workflows - and help you create satisfyingly tidy drawings in less time.
Recently, we honed in on ensuring you can share key model dimensions and information confidently. A handful of upgrades now make this possible. Let’s take a closer look at the updates for each step of the documentation process.
Get started quick
We bulked up on the fundamentals so you can add detail views, work with expanded drawing settings, and iterate on drawings quickly.
Detail views options
Whether you want to highlight a small manufacturing detail or enlarge a subset of a section view, now you can do both. Your Drawing stays clutter-free as you minimize the views you need to add and save paper space.
Drawing settings
No point of the globe goes uncovered. Since many of you are working from or for different locations, we added multiple options to ensure a seamless handover to manufacturing. This entailed moving the Drawing settings to a sidebar and expanding on the settings. Now you can choose freely from various ISO/ANSI settings. Sheets, projections, decimal points, and line widths - and more - come with the update.

Duplicate Drawings
At any point during your process, you can create different variants. You have the option to duplicate your Drawing for quick iteration whether you need to document different stages or just want to highlight specific information for your client or manufacturer.
View projection flow
Finally, we made it easier overall to create Drawings. With adaptive features that give you a frictionless documentation experience, you can make the right decision in less time.
When you tap on a base view, a visual canvas of projected view options populates on your screen. So you can skip actively thinking about which view to add and tap from the visual menu that appears. Your selected views automatically move together, staying aligned so you can quickly place the arrangement of your choice on the Drawing sheet. Less guesswork means more effortless documentation and conserved focus for high-quality decisions.
Add all the fine details
Built-in tidiness lets you make short work of adding measurements and aligning dimensions at just the right spot in your Drawings.
Dimensions snapping
After arranging views, add dimensions with similarly minimal work and automatic tidiness. Now dimensions snap to fixed distances and dimension labels to the middle of the dimension line.
Add tolerances and notes
Double-clicking on a dimension lets you add crucial final touches. Share all the information you need so you can rest easy knowing you delivered everything necessary - so when your manufacturer doesn’t have questions, you don’t worry.

Prepare for delivery
To round out your 2D Drawings, select from added options that let you choose your presentation style for increased readability and professionalism.
Customizable title block layouts
Instead of working with just one rigid title block option, now you can pick from several predefined title block layouts. Fill the text boxes with custom text that gives the exact necessary information to your reader.
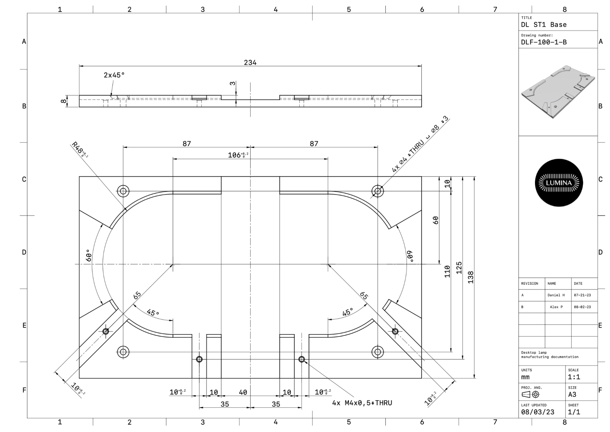
Add images
Plus, you can add more personal customization for professional delivery with your company logo or 3D screenshots of models. A simple import gets the job done so you’re ready to share information effectively.
What’s next for Shapr3D Drawings?
There’s more on the horizon. We’re tightening the gap between design and manufacturing with our eyes set on creating more advanced Drawings. Look out for features like GD&T symbols, threads, and improved dimensioning options in the near future.
Transcript of the video:
Hi, I'm Alex. I'm the Product Manager of 2D Drawings.
We have been heavily investing into this space in the last couple of months, and I'm very happy to stop for a moment and share our progress with you. What we wanted to make sure that drawing creation in Shapr3D is fast and simple, but at the same time drawings can be clean and organized.
To achieve that, we added features which make the drawing creation flow smooth. Like the improvements to view creation. With base and projection views you can add and align the most important drawing views in no time. The dimension lines and labels also snap to fix distances, ensuring organized, easy-to-read drawings. You can also choose from various new settings on the Drawing Properties sidebar. Settings related to your standard and precision are just one click away. And if different versions are needed, for example, for your client and manufacturer, you can just duplicate and make the adjustment there.
We have also added features, which help in sharing the fine details of your drawing. We have added detail views, so you can highlight the important small manufacturing details as well. And of course, this also helps in creating clutter-free drawings, with minimizing the number of views needed on the paper space. Predefined title block layouts let you adjust the amount of information you need to share. Choose your layout from the Drawing Properties sidebar, and fill the text boxes with the necessary information.
With Image Import, you can insert your logo or custom screenshots to help communicate your intent better. This is where we are now, but this is not the end of the journey. Give Shapr3D Drawings a spin and let us know which features helped you the most.
Thank you for watching, see you next time!



